Save
Ask
Tour
Hide
$349,500
12 Days On Site
13959 Grand Oaks DriveBaxter, MN 56425
For Sale|Single Family Residence|Coming Soon
4
Beds
2
Total Baths
2
Full Baths
2,192
SqFt
$159
/SqFt
2001
Built
Subdivision:
Whitney Oaks
County:
Crow Wing
Listing courtesy of Edina Realty, Inc.
Call Now: 218-496-3800
Is this the listing for you? We can help make it yours.
218-496-3800

Save
Ask
Tour
Hide
Mortgage Calculator
Monthly Payment (Est.)
$1,595Calculator powered by Showcase IDX, a Constellation1 Company. Copyright ©2025 Information is deemed reliable but not guaranteed.
Spacious 4-bedroom, 2-bath Baxter home on a large lot! The lower level features a cozy gas fireplace, while the main level has an open kitchen and dining area that provides a great space for family gatherings. Enjoy walk-in closets with lots of space. The large fenced backyard is perfect for entertaining or relaxing and could accommodate a fire pit. Oversized 2-stall garage, ample storage, and a convenient location near schools, parks, and shopping. Move-in ready—schedule your showing today!
Save
Ask
Tour
Hide
Listing Snapshot
Price
$349,500
Days On Site
12 Days
Bedrooms
4
Inside Area (SqFt)
2,192 sqft
Total Baths
2
Full Baths
2
Partial Baths
N/A
Lot Size
0.56 Acres
Year Built
2001
MLS® Number
6812856
Status
Coming Soon
Property Tax
$3,074
HOA/Condo/Coop Fees
N/A
Sq Ft Source
N/A
Friends & Family
Recent Activity
| 2 weeks ago | Listing updated with changes from the MLS® | |
| 2 weeks ago | Listing first seen on site |
General Features
Acres
0.56
Attached Garage
Yes
Garage
Yes
Garage Spaces
2
Land Lease
No
Levels
Multi/Split
Parking
AsphaltAttached
Property Sub Type
Single Family Residence
Sewer
Public Sewer
SqFt Above
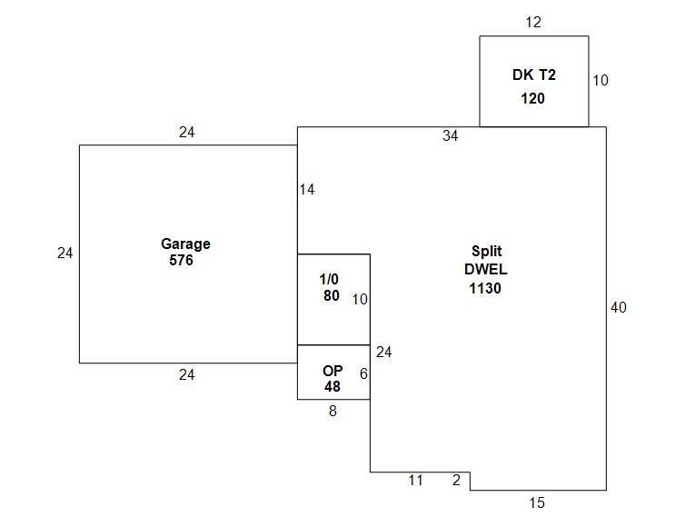
1227
SqFt Below
965
SqFt Total
2175
Water Source
PublicOther
Zoning
Residential-Single Family
Interior Features
Basement
Full
Cooling
Central Air
Fireplace
Yes
Fireplaces
1
Heating
Natural GasForced Air
Save
Ask
Tour
Hide
Exterior Features
Construction Details
Vinyl Siding
Community Features
School District
Brainerd
Schools
School District
Brainerd
Elementary School
Unknown
Middle School
Unknown
High School
Unknown
Listing courtesy of Edina Realty, Inc.
Listing information is provided by Participants of the Northstar MLS. IDX information is provided exclusively for personal, non-commercial use, and may not be used for any purpose other than to identify prospective properties consumers may be interested in purchasing. Information is deemed reliable but not guaranteed. Copyright 2025, Northstar MLS.
Last checked: 2025-11-16 06:32 PM UTC
Listing information is provided by Participants of the Northstar MLS. IDX information is provided exclusively for personal, non-commercial use, and may not be used for any purpose other than to identify prospective properties consumers may be interested in purchasing. Information is deemed reliable but not guaranteed. Copyright 2025, Northstar MLS.
Last checked: 2025-11-16 06:32 PM UTC
Neighborhood & Commute
Source: Walkscore
Disclosure: Community information and market data powered by Constellation Data Labs. Information is deemed reliable but not guaranteed.
Save
Ask
Tour
Hide


Did you know? You can invite friends and family to your search. They can join your search, rate and discuss listings with you.