Save
Ask
Tour
Hide
$74,500
23 Days On Site
28396 350th Avenue 4Battle Lake, MN 56515
For Sale|Commercial Sale|Active
0
Beds
0
Total Baths
1,200
SqFt
$62
/SqFt
2024
Built
Subdivision:
Brown Lk Add
County:
Otter Tail
Listing courtesy of Lakes Family Real Estate/Otter Tail Real Estate
Call Now: 218-496-3800
Is this the listing for you? We can help make it yours.
218-496-3800



Save
Ask
Tour
Hide
Mortgage Calculator
Monthly Payment (Est.)
$340Calculator powered by Showcase IDX, a Constellation1 Company. Copyright ©2025 Information is deemed reliable but not guaranteed.
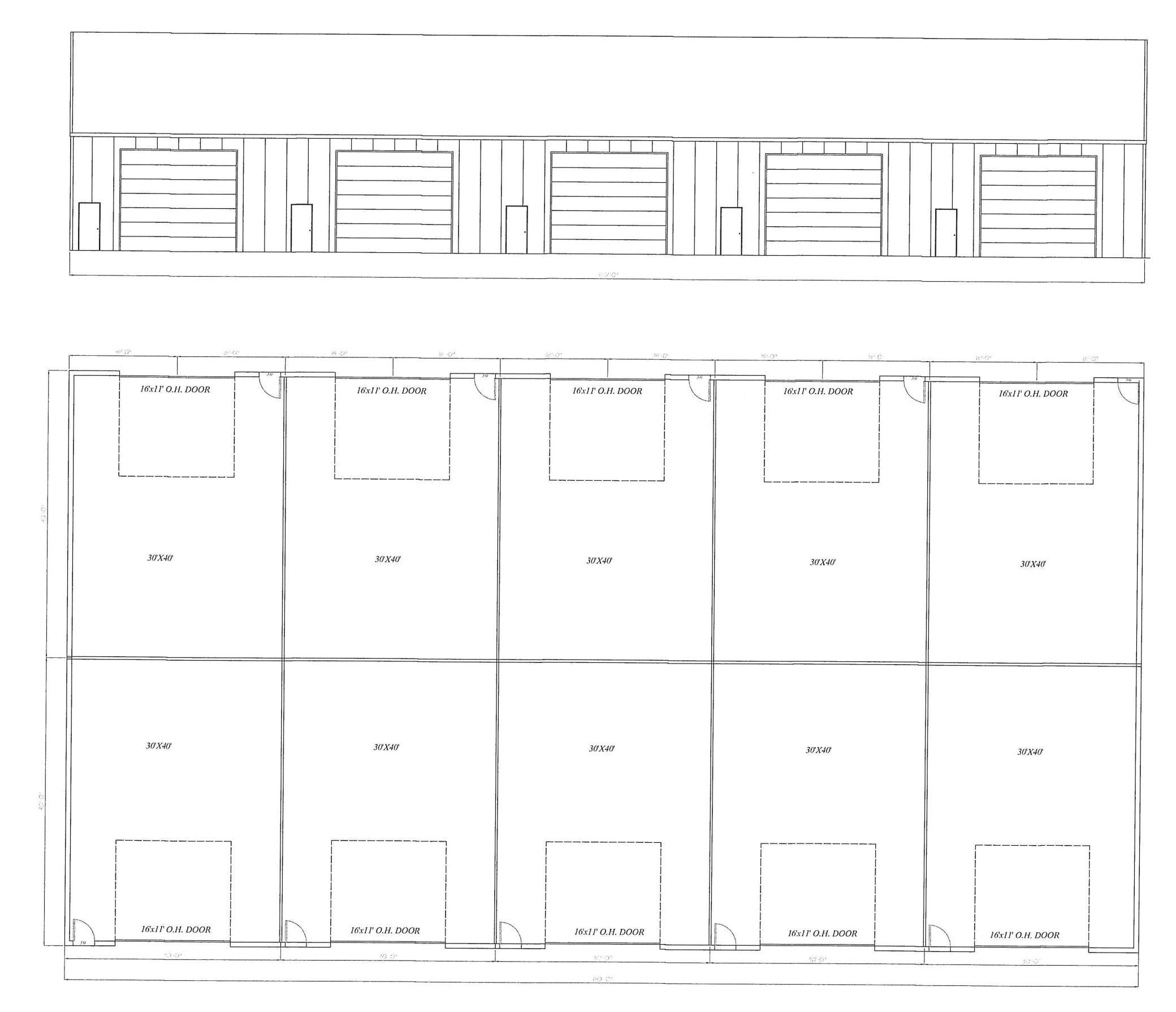
OTTER TAIL LAKE 30X40 STORAGE CONDOMINIUM UNITS in a PRIME & convenient location to several lakes (Otter Tail, Deer, East Lost, Twin, Round, and many more) just West of Otter Tail Lake off of county Road 1. Have the freedom of owning your own unit and finishing as you like. These units are 2x6 stick built construction on a concrete slab with thickened edges, 16W'x11H' insulated overhead, 100-amp electric panel, 2x4 shared divider walls, steel wainscot around building, 3' apron, Low HOA dues to cover snow/grounds upkeep, driveway maintenance and shared exterior insurance. Owner/Agent
Save
Ask
Tour
Hide
Listing Snapshot
Price
$74,500
Days On Site
23 Days
Bedrooms
N/A
Inside Area (SqFt)
1,200 sqft
Total Baths
N/A
Full Baths
N/A
Partial Baths
N/A
Lot Size
1.84 Acres
Year Built
2024
MLS® Number
6809101
Status
Active
Property Tax
$72
HOA/Condo/Coop Fees
N/A
Sq Ft Source
N/A
Friends & Family
Recent Activity
| 3 weeks ago | Listing updated with changes from the MLS® | |
| 3 weeks ago | Listing first seen on site |
General Features
Acres
1.84
Additional Property Use
Other
Garage
Yes
Garage Spaces
2
Land Lease
No
Parking
Gravel
Sewer
None
SqFt Total
1200
Water Source
None
Zoning
Other
Save
Ask
Tour
Hide
Exterior Features
Construction Details
Metal SidingSteel Siding
Community Features
School District
Battle Lake
Schools
School District
Battle Lake
Elementary School
Unknown
Middle School
Unknown
High School
Unknown
Listing courtesy of Lakes Family Real Estate/Otter Tail Real Estate
Listing information is provided by Participants of the Northstar MLS. IDX information is provided exclusively for personal, non-commercial use, and may not be used for any purpose other than to identify prospective properties consumers may be interested in purchasing. Information is deemed reliable but not guaranteed. Copyright 2025, Northstar MLS.
Last checked: 2025-11-17 12:01 AM UTC
Listing information is provided by Participants of the Northstar MLS. IDX information is provided exclusively for personal, non-commercial use, and may not be used for any purpose other than to identify prospective properties consumers may be interested in purchasing. Information is deemed reliable but not guaranteed. Copyright 2025, Northstar MLS.
Last checked: 2025-11-17 12:01 AM UTC
Neighborhood & Commute
Source: Walkscore
Disclosure: Community information and market data powered by Constellation Data Labs. Information is deemed reliable but not guaranteed.
Save
Ask
Tour
Hide


Did you know? You can invite friends and family to your search. They can join your search, rate and discuss listings with you.